高雄 07-731-6680(代表號)
台北 02-2325-9009(代表號)
CASE
Provide knowledge and excellent technical support
To provide innovative and cost-effective firestop solutions.
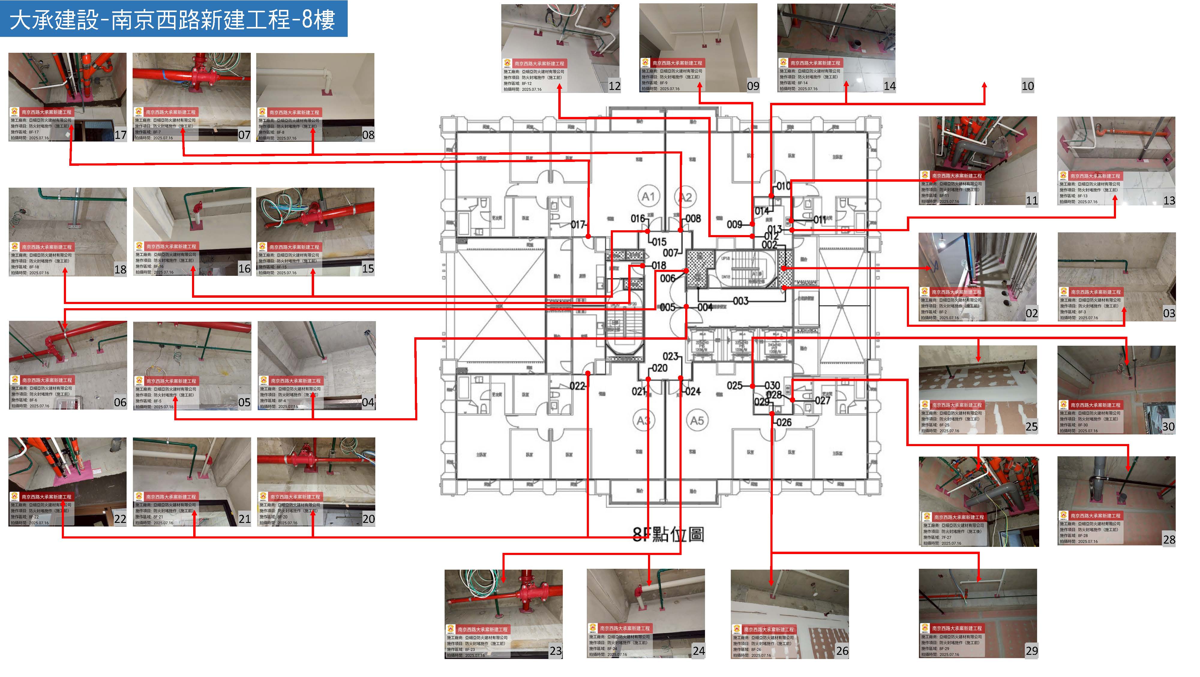
實績案例
集合住宅
南京西路大承案新建工程
回列表頁